日本多功能厅舞台工艺的精细化设计——透过4个新案例解析
多功能厅因灵活的舞台布局及相应的座椅形式可以满足多种功能的活动和演出。如何以最小的经济代价实现灵活多变的机械形式,一直是舞台工艺设计的追求。日本设计一向追求精细化和高性价比,现列举日本2020年后新建成的4个多功能厅(柳川市民文化会馆白秋厅(2020年、803座)、五泉市交流中心多功能厅(2021年、500座)、冰见市艺术文化中心(2022年、784座)、富山市艺术文化会馆奥贝德中厅(2023年、652座)),希望从中学习到一些高性价比的布置特点: 1.最大限度地减少地面机械的面积,通常只设观众席前4~8排的升降机械,就能基本满足多功能的使用需求。这样配置的优点为:
1)顶端不设升降机械舞台,而是通过降低前区观众席,形成相对高的顶端舞台。不存在顶端升降舞台或人工搭建舞台和后台产生的高差,可以有效避免演员上下台的摔跤风险。 2)相对于顶端舞台或全厅地面可升降,观众席前4~7排的面积更小,因此机械的造价也比较低。 3)观众席前4~7排还可以升起作为中心舞台或伸出式T台,功能更多变。
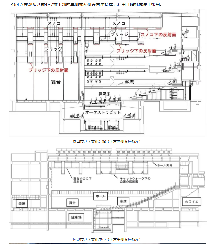
4)可以在观众席前4~7排下部的单侧或两侧设置座椅库,利用升降机械便于搬用。
2.一般至少设一层侧楼座(也成侧连廊),既可以增加座位数、提高观众的包围感,又可以作为耳光或侧光的设备层。网络高度发达的时代,各种活动或演出的摄像宣传必不可少,侧连廊也可作为摄影机位(位置高、不易被遮挡)。
3.采用可移动的气垫座台或活动座椅,以满足中心舞台使用时的座椅布置需求。
一、柳川市民文化会馆 2020年12月20日开放的柳川市民文化会馆是一座位于柳川运河边的剧场建筑(柳川是一座以河船闻名的水乡),建筑设计为日本设计株式会社。舞台宽18.1m,深16.5m,台口高9~11m,面积599m2。其中最大的多功能厅——白秋厅可容纳803个座位(1楼移动座位559个、2楼固定座位240个、轮椅座位4个)。
气垫座台分为两层,前五排座位设有升降装置,可拆卸移动;第六排及以上座位固定在地板上,但安装在气浮车上,可随阶梯状地板移动。座台被分成几排,方便灵活安排座位,例如改变每个排座位的方向和位置。放下升降装置并将座位收进地板下方,可形成前舞台布局;将第六排及以上座位连同座台一起收进后台,可形成平地板布局。舞台可以设置在地板中央,座位围绕舞台布置,形成中央舞台或竞技场布局。通过打开大厅后方和前厅的可移动隔断,可以将厅内的活动扩展前厅以及室外广场和运河。此外通过收纳舞台的反声板和组合座位等各种形式,可以创建一个不受传统大厅布局限制的多功能厅。
二、五泉市交流中心——多功能厅 2021年10月2日开放的五泉市交流中心综合体(Laporte Gosen complex),其中的多功能厅非常有特色。由于多功能厅大部分由市民使用,因此要求它能够用于各种用途,并且易于转换舞台。另一方面,考虑到与周围居住环境的协调以及预算有限的情况,多功能厅要求设计成低层建筑。其结果是限制了多功能厅的天花板高度,并规划为没有舞台主塔的大厅。该厅可容纳500人(包括二楼的117个座位和4个轮椅座位),可用于举办音乐表演、戏剧表演等活动。当座椅折叠起来时,厅内面积约为500平方米,可用于举办展览展示等各种活动。
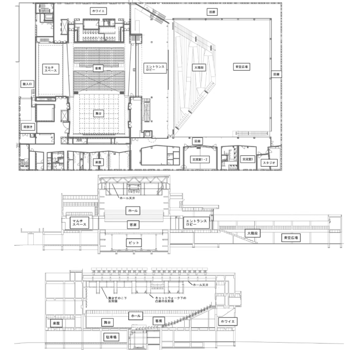
三、冰见市艺术文化中心 冰见市艺术文化中心于2022年10月竣工开放。冰见市位于富山县西北部,能登半岛的南端。建筑设计由早稻田大学古屋伸昭教授+Nasca一级建筑师事务所负责,声学设计为永田音响设计。 该大厅为多功能厅,平面呈长方形,共设784个座位,包括一楼的活动座位和二楼的固定座位。侧墙顶部设有高侧窗,自然光线充足,景色优美。约500个可移动座位,利用地面气压可分成12个区块移动,可根据演出需要灵活运用。
四、富山市艺术文化会馆——奥巴德厅(Aubade Middle Hall) 富山市艺术文化会馆的奥巴德大厅于1996年在日本富山市落成,其声学设计主要以歌剧表演为主,共设2196个座位。而奥巴德中厅于2023年7月1日才正式开放,最多可容纳652个座位。中厅的舞台和观众席距离很近,可以直接感受到表演者的表情和呼吸。观众席可移动,舞台空间灵活多变,可以用作标准舞台、平的池座地面或中央舞台。这拓展了演出类型和制作的可能性,使其适用于戏剧、音乐会和时装秀等多种用途。 主层由前部的气垫座台和后部的伸缩座椅组成。伸缩座椅的观众席一侧地面平坦,打开伸缩隔板即可与门厅融为一体。它们不仅可以存放在观众席后方的楼座下方,还可以一直存放到舞台后方。此外,安装气垫座台的观众席前方的地面由两部分组成,可升起形成舞台,气垫座台则可移向常规舞台,形成中央舞台的格局。为了方便观众席一侧用作舞台时进行演出,不仅在舞台上方,还在观众席上方设置了板条和天桥。正因如此,剧院能够灵活地适应各种用途,这才是其独特之处。 在规划这座拟建为剧院的中型大厅的室内声学效果时,目标是营造一个能让观众席上的人清晰听到演员台词的音响环境。为此,需要适度抑制剧院内的混响,同时确保早期反射声在直达声到达后尽早到达也至关重要。舞台和观众席上方安装的七座桥的底部也设计成覆有木板的反射面,以确保早期声反射能够到达舞台和座位(照片中白色表面可见的天桥)。三层侧楼座的底部也有助于向座位提供横向声反射。即使使用舞台音响系统,在这种环境下通过适当的扩声也能获得自然、清晰的声音。
|































