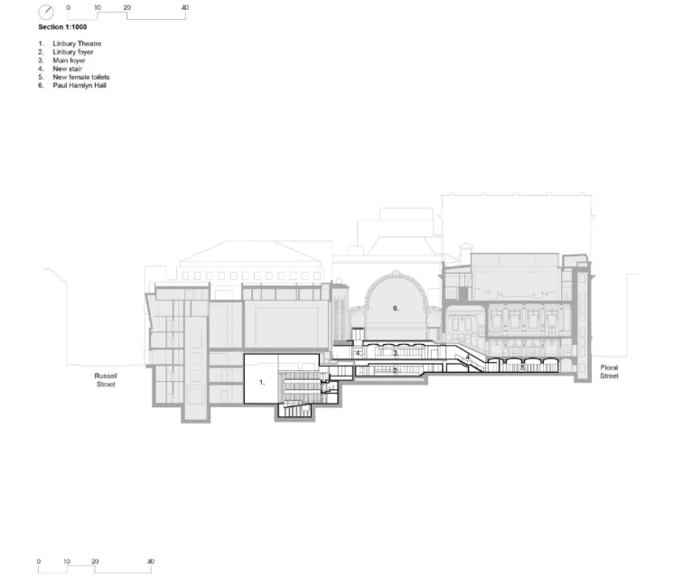
舞台工艺设计——电子可调混响的设计和应用案例评价
2014年,英国皇家歌剧院进行了名为“开放项目(Open Up)”的翻新工作,主要包括改善入口、大堂区域和林伯里剧院。目的是在白天向公众开放剧院建筑,既能吸引新的观众群体,又能回馈现有的观众。 林伯里剧院建于皇家歌剧院地下一层,是一个灵活的辅助表演空间。剧院设有可伸缩的倾斜座椅,地板可升降,形成工作室地板、升高的舞台或带乐池的舞台。剧院最多可容纳400名观众,并可举办各种活动。它曾用于举办私人聚会、传统戏剧表演、音乐会,以及社区和教育活动、产品发布会、晚宴和展览等。它是伦敦技术最先进的表演场地之一,拥有自己的公共区域,包括酒吧和衣帽间。伦敦西区最新、最私密的演出场地,院林伯里剧院于2019年1月17日迎来首场现场演出。
在内部,一楼门厅空间增加了 19%,并以 Crema Marfil 大理石地板和美国黑胡桃木镶板进行了明亮的装饰。
改造前的林伯里剧院:
改造后的林伯里剧院整体采用黑胡桃木包覆,其灵感源自1858年歌剧院主礼堂丰富的樱桃木包覆层。灯光、隔声材料和音响设备均集成在木材中。
一、声学改进措施: 1.优化返回舞台(表演者的)早期反射声(即提高表演者的返听声) 早期的研究旨在优化剧场的结构,以提高声音反射回表演者的密度。栏杆的倾斜度以及将池座座位的坡度降低以使更多的后墙得以显露,这两项举措都表明早期反射的声音能够在舞台的较大区域内将声音导向舞台对面的演唱者。
2 采用电子可调混响来增加剧场的混响时间 增加剧场的混响时间则证明是一个更大的难题。由于上方紧邻着歌剧院排练室,且旁边是布景仓库,现有的独立砖石结构无法进行扩展。重新布置的阳台、座位倾斜面、高处的管道系统和楼梯并不能对房间的体积产生任何显著的改变。
观众厅唯一的吸声主要来源是观众席,大幅减少座位数量并非皇家歌剧院的可行选择。不过,有一个小小的优点是,倾斜角度较浅的设计既能略微减少实际的吸声效果,又能为演唱者提供一些后墙表面以利于声音的反射。因此声学顾问Arup建议考虑采用一种主动声学增强系统(active acoustic enhancement system)。 专家的重要意见是混响时间的增强存在一个明确的上限。超过房间响应40% - 50% 的增强幅度通常会被认为会开始显得不自然。原因: 1. 可能是由于平衡了自然反射和添加反射之间的比例关系所致; 2. 也可能是听觉与视觉之间存在冲突的结果——我们所看到的在一定程度上会引导我们对所听到声音的预期。
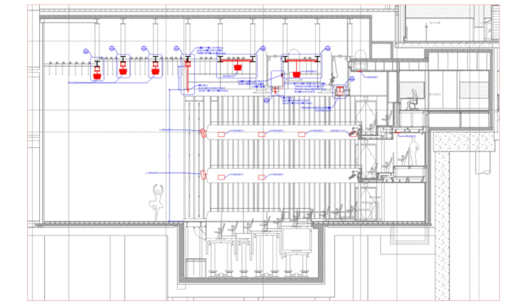
采用ACS公司的主动声学增强系统,扬声器的布局是其成功的关键。要实现均匀的声场分布,同时又不干扰剧院的正常运行要求,并且与观众保持适当的距离,这是一项挑战——尤其是在这样一个灵活的剧院中,它可以采用不同的座位倾斜角度或平面布局。该系统共配备了44个扬声器: ▶ 8个位于舞台上方,供处于末端表演模式的表演者使用,或供处于平面模式的观众使用。 这些装置是通过悬挂在横跨舞台宽度的桁架上而固定在舞台之上的。 确保它们不会影响飞杆的正常运行。 ▶ 10个设在观众厅上方,悬挂在面光桥和技术马道下面。 ▶ 6个补声单元设在后方楼座上方。由于靠近该区域的观众席,低位单元被选为平板、宽扩散单元。出于美观考虑,这些单元的表面采用与周围木质拱腹相同的木饰面,因此不易被识别为扬声器。 ▶ 14个单元隐藏在楼座前面栏杆内。 ▶ 6个短柱安装在面向舞台的楼座正面
3.使用后评估 剧场的自然混响时间为0.85~0.95秒(跟悬挂幕布的多少有关)。普遍的观点是,当混响时间设置为1.2秒时,主动系统的声音听起来非常自然,显著提升了音乐家和歌手的音质。当混响时间设置为1.4秒时,声音仍然非常出色,但略显过长。当混响时间设置为1.6秒时,声音的衰减尾部显得不那么自然(尤其是歌手和小提琴的声音),系统的音量似乎过高。将混响时间设置为2.0秒时,效果会进一步夸大。音乐总监Tony Pappano指出,在混响时间较长的情况下,小号的表现比歌手和小提琴更好。 表演者发现,将系统设置为1.2秒左右时,他们更轻松地让声音充满整个房间,因此可以更加放松,从而让他们的表演更加愉悦。从观众的角度来看,当系统设置为1.2秒时,剧院的声音听起来自然且均衡,并保持了指向性。当混响时间较长时,剧院的声音开始变得不那么自然。对于需要扩声的演出,仍然可以灵活地完全关闭系统,以提供清晰的重现声音。 二、满满的细节 细节之楼梯:
细节之吧台:
细节之木扶手:
|




























