020-28135360
联系我们 Contact us
广州赣视听电子设备有限公司
电话:020-28135360
传真:020-34829806
E-mail:120186835@qq.com
地址:广东省广州市番禺区草河工业区一巷
行业动态

当前位置: 首页 > 新闻动态 > 行业动态

《剧场建筑设计规范》图示及解释—02

发表时间:2025-09-05 阅读:

2.0.23  上场口stage right     (面对观众时,舞台右侧的演员上场出入口)。

2.0.24  下场口stage left       (面对观众时,舞台左侧的演员下场出入口)。

《剧场建筑设计规范》图示及解释—02(图1)

2.0.25 台口线curtain line     ( 台口构造内侧面边线在舞台面上的投影线,是舞台机械定位的基准)。

《剧场建筑设计规范》图示及解释—02(图2)

2.0.26  栅顶grid;gridiron   (舞台上部为安装、检修悬吊设备的工作层,俗称葡萄架)。

【备注及补充】  是舞台设备安装检修的工作平台,一般属于建筑钢结构,注意需由舞台机械工艺设计提供荷载等条件,再提交建筑结构进行结构设计。栅顶,是舞台上部为安装、检修悬吊设备的工作层,主要用于安装和悬吊灯光、幕布、音响、吊杆等设备。栅顶通常由网架结合平铺或一排排的架子组成,类似葡萄架,因此俗称葡萄架。栅顶通常分为满铺式和马道式两种,满铺式是在栅顶上铺满踏板,形成整体式工作层。马道式仅在需要安装、维修设备的地方设置行走通道,其余地方不铺踏板,行走通道俗称马道(图示2)。栅顶的格式通常因为荷载或造价等原因进行选择。

《剧场建筑设计规范》图示及解释—02(图3)

2.0.27  天桥fly gallery  (沿主舞台的侧墙、后墙墙身一定高度设置的工作走廊)。

《剧场建筑设计规范》图示及解释—02(图4)

2.0.26/2.0.27/2.0.28/2.0.29

【备注及补充】  天桥是安装、操纵和检修等功能走道空间,诸如吊杆电机、侧光灯/灯光吊笼等舞台上部机械的通廊。天桥一般设2~3层,大型舞台设5~6层。天桥间设固定工作梯,高差超过2m不得采用垂直爬梯。有条件的宜设工作电梯,由台仓通往各层天桥直达栅顶。

2.0.28 大幕proscenium curtain   (分隔舞台与观众厅的软幕。其开启方式又分对开式、提升式、对开斜拉式、串叠式和蝴蝶式等)。

【备注及补充】  起到观众席和舞台之间分割作用的幕,位于镜框舞台台口的内侧,镜框舞台与假台口之间,前檐幕后面。牵引大幕起闭运动的机械设备为大幕机。大幕机根据运动方式的不同可有对开、升降、斜拉等基本运动形式,并可组合成复合运动。如对开大幕机、升降对开大幕机、三功能大幕机等。大幕机是剧场最重要的舞台机械设备之一,通常有舞台监督指挥与控制。对开大幕机有幕轨钢架、均匀伸缩机构和对开式拉幕系统组成;升降式大幕机有吊幕桁架、卷扬机和索具系统组成;斜拉式大幕机由拉幕卷扬机和索具系统组成;多功能大幕机在部分剧场中,可有将两种功能或三种功能合并,做成多功能大幕机的。

《剧场建筑设计规范》图示及解释—02(图5)

2.0.28-1  场幕机

【备注及补充】  设置在舞台中前区上空或中后区上空,分隔舞台空间,用于戏曲等节目的背景幕,功能有对开和升降两种。通常的运动方式为对开,设备可悬挂在大幕和天幕中建的位置。
有电动、手动等驱动方式。可将舞台分隔成不同的演出区域或作为背景幕使用,在多幕、多场话剧演出中,常作为场的分隔幕,所以又称为场幕。二道幕机有幕轨系统、驱动系统(电动或手动)组成。

  边幕Tormenter/Legs:边幕或称侧幕,位于舞台的左右两侧,对舞台表演区域起限制作用,其平行、正“八”字、倒“八”字等吊装方式可以改变舞台表演区平面的形状,对舞台后部空间进行遮挡,引导、控制观众的视线集中在规定的表演区内。

  檐幕Teaser:位于镜框舞台台口上方的幕布。檐幕与左右两侧的边幕相配合,起到控制演出空间的视觉高度、遮挡舞台空间上部内侧的布景、灯光等装置不进入观众视线的作用。

  纱幕Bobbinet:纱幕一般不作为剧场的固定装置,是以薄质地带有网状孔眼的棉布或化纤材料制成的半透明幕布。除本身所具有的轻薄、打褶后可以制作成各种装饰幕特点以外,还具有一定的透光作用。舞台上常用白纱幕、黑纱幕、纱画幕表现场景环境,从纱画幕后面向景物投光可以显现隐藏在后面的人物和空间环境,从而易于表现梦幻、回忆的虚拟场面;从前面向纱幕投光可以表现渲染纱画幕上所画的形象;从纱幕背面向纱幕投光时,纱画幕前面所画的形象看起来则不复存在。其他单色纱幕也具备以上特点,只是白色及浅色纱幕反光效果强,深色、黑色纱幕可以更好地吸收舞台上的散射光,更易于表现虚拟、朦胧的幻觉空间效果。纱幕有多种纺织方法,舞台最常使用的是被称为“象眼纱”的六菱形孔状的织物。

  黑底幕Black:位于舞台后部天幕之前,适于表现黑暗的场景空间,在日本歌舞伎戏剧中表现室外以及夜晚或者虚无状态。

《剧场建筑设计规范》图示及解释—02(图6)

2.0.29 天幕cyclorama    (悬挂在舞台远景区,表现背景的幕布)  。

【备注及补充】  位于镜框舞台演出空间最后部位,作为表现演出背景环境的幕布。其高度和宽度通常大于台口尺寸,可以根据演出需要,将其设计制成平面幕或弧型宽幕。开幕朝向观众席的内侧,可用于排灯、幻灯等进行照明或投射各种色彩形象,与整个舞台空间形成一个整体的画面。材质一般为纯棉帆布和纱卡,也分为有缝天幕和无缝天幕。

《剧场建筑设计规范》图示及解释—02(图7)

2.0.30 舞台机械stage machinery   (为舞台表演活动服务的机械设备的统称)。

【备注及补充】  常规有舞台台上机械设备(灯光吊杆、景杆、柱光架、对开大幕\二幕、防火幕、吊笼、灯光渡桥等);

  舞台台下机械设备(主舞台升降平台、乐池升降平台、乐池升降栏杆、补偿台、车台、转台等);

  控制系统(舞台台上控制系统、舞台台下控制系统)、舞台幕布(对开大幕\二幕、横侧幕、天幕、纱幕等)。

《剧场建筑设计规范》图示及解释—02(图8)

《剧场建筑设计规范》图示及解释—02(图9)

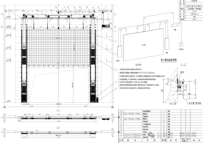
2.0.31 防火幕fire curtain    (设置在舞台台口处,在火灾情况下可迅速关闭台口,隔离舞台与观众厅或主舞台以外的其他区域,防止火灾蔓延的专用设备。①有规定的耐火极限、抗风压极限、隔离密封极限、关闭过程时间极限及安全控制等特性要求;②可有隔声功能,当设置在侧台口或后台口时主要以隔声功能为主;③参考防火分区设置)。

【备注及补充】  防火幕根据安装位置的不同可分为台口防火幕、后台防火幕及侧台防火幕。目前使用的防火幕主要有两种类型:柔性防火幕和刚性防火幕。根据规范,幕体的耐火极限应不小于60min。对于整体升降式防火幕,紧急情况进行紧急释放时,幕体全行程自重下降时间应在30s~45s之间,距舞台面垂直高度2.5m后的下降时间不应小于10s。(具体参数详见《舞台机械刚性防火隔离幕 GB36726-2018》。考虑到防火问题太口处应采用刚性防火隔离幕。

幕体尺寸: 高度大于台口建筑高度0.5~1m,宽度大于台口建筑宽度每侧各0.5~1m,厚度大约100~200mm。

荷载:考虑到发生火灾时幕体两侧存在空气压差,因此要求幕体可承受水平35kg/m'的荷载。

《剧场建筑设计规范》图示及解释—02(图10)

《剧场建筑设计规范》图示及解释—02(图11)

2.0.32 假台口 false proscenium  

(设置在舞台口之后,由上片和2个侧片组成,可适度改变台口大小,同时可用作悬挂台口灯具的主要设施)。

【条文解释】又称活动台口。其中假台口上片和假台口侧片的术语分别如下:

1、假台口上片 portal lighting bridge

可调整台口高度、用于悬挂灯具的桥型金属构架升降装置。

2、假台口侧片 portal lighting towers

可调整台口宽度、用于悬挂灯具的塔形金属构架,可做柱光架使用)。

《剧场建筑设计规范》图示及解释—02(图12)
《剧场建筑设计规范》图示及解释—02(图13)

【备注及补充】  一般剧场在建筑台口的后面设置一套能适当改变台口宽度和高度的活动台口装置。其作用一是根据不同的演出需要,调整台口宽度和高度尺寸;二是悬挂灯具,为台口区布置顶光和侧面柱光。

 假台口是有上片、左右侧片三个可活动的钢架结构组成。上片唯一可调台口高度、用于悬挂灯具的桥型金属构架升降装置,又称台口灯光渡桥,带有电缆收放装置、可上人进行操作。上片有提升卷扬系统、导向系统、伸缩挡板、转向滑轮和索具等;左右两侧可水平运动的调装置称假台口侧片,可调整台口宽度、用于悬挂灯具的塔型金属结构。可平行于台口方向移动,可上人操作,也称台口柱光架。侧片的水平移动装饰可以是电动也可以是手动。

 假台口吊桥 False Proscenium Bridge:利用假台口上框可上下移动的功能,在舞台内侧的框上建造的通道。供安装照明投光灯具和舞台工作人员调光时作操作平台用。

《剧场建筑设计规范》图示及解释—02(图14)

2.0.34 渡桥码头 portal bridge 

(由天桥上伸出的,通往灯光渡桥或假台口上片的平台或吊板)。

2.0.35 车台 stage wagon

(在主舞台、侧舞台、后舞台之间,水平移动的机械舞台)。

【条文说明】:①根据设置位置不同有侧舞台车台,简称侧车台;后舞台车台,简称后车台,以及无固定位置的自由式车台等;②用气垫托起设备和荷载、以人力推动并自由移动的称为气垫车台,属自由式车台;③搬运特定对象的车台称为专用车台、如水池车台、冰场车台等。

《剧场建筑设计规范》图示及解释—02(图15)

【备注及补充】根据车台移动方式和车台的运动是否要依靠外部力量,我们可以把车台分为四大类:a.主动式移动车台、b.主动式滑动车台、c.被动式移动车台、d.被动式滑动车台。其中:

滑动车台:由于一些设计要求使用升降平台,并且要求升降平台要下降到舞台平面以下,这样主演区就会形成一个舞台坑,由于演出时需要使用主演区,而移动车台又无法在舞台坑上运动,在这种情况下就需要一种吊车桥架的桁架式车台来覆盖主演区,车台的行走轮安装在舞台坑内左右两侧的轨道上,这种车台被称为滑动车台。

主动式车台:是指可以车台本身带有行走驱动设备的车台,可以一维、二维甚至可以任意方向运动的车台。剧场中比较常见的主动式车台有两种,分别是主动式移动车台和主动式滑动车台。

被动式车台:是指车台本身没有安装动力装置,需要依靠外来的拉力或推力使车台移动。这种类型的车台只能进行一维或者二维的运动。同样剧场中常见的被动式车台也主要有两种,分别是被动式移动车台和被动式滑动车台。

2.0.36 升降台 elevating stage     (舞台上可以升降的机械舞台)。

【条文说明】:①当用于特定位置时,可在前面加相应的引导词,如主舞台升降台、后舞台升降台、观众厅升降台等;②当用于特定功能时,可在前面加相应的引导词,如运景升降台、钢琴升降台、软景储存升降台等;③根据结构形式不同可分为:单层、双层、台面可倾斜式、子母式、复合式等,当需要区分时,可在前面加相应的引导词。

《剧场建筑设计规范》图示及解释—02(图16)

【备注及补充】 升降台一般设于主舞台上,可根据剧情需要升高或降低舞台台面,通常采取条形布局,长度与台口宽度相同,宽度一般在2.5~3.6m之间。主要设备有:单层升降台、双层升降台、子母升降台等,双层升降台上设有演员活门、演员升降小车等。升降台传动方式有刚性链、螺旋丝杠、链条、剪刀撑、大螺旋、钢丝绳等,各有不同特点,可根据不同使用要求选择。通常靠液压装置、齿轮齿条装置、涡轮涡杆装置、以及丝杆转动装置等完成升降机械动作。

2.0.37 转台 revolving stage    (舞台上可以水平旋转的机械舞台)    。

【备注及补充】旋转台是在大型剧场中经常设置的可旋转舞台,以满足演出和换景的需求。按台面结构可分:单个旋转台、组合型旋转台、旋转升降台。按其构造形式及功能又可分为:车载转台、鼓简型转台、拼装转台等。

《剧场建筑设计规范》图示及解释—02(图17)

"※ 后续持续更新 ※

敬请看——《剧场建筑设计规范》图示及解释—03

铝合金满洲窗 揽世标识 威泰源 沃森广告 夷读教育 广州代理记账